Alle Informationen über unsere Produkte finden sie hier:
UNSERE PRODUKTE
Deutsch
-
Schicken Sie uns Ihr Aufmaß per Fax an diese Faxnummer: 07195 - 9750 - 99.
-
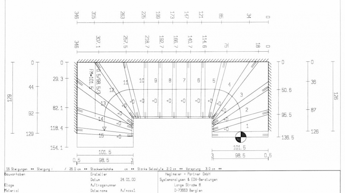
Wir erstellen für Sie die Verlegezeichnung M 1:10, Stücklisten und 1:1 Schablonen.
-
Vom Aufmaß bis Sie die Schablonen haben dauert es in der Regel 2-3 Werktage nach ihrer Bestätigung.
Für eilige Abwicklungen Ihrer Aufträge in Italien (Raum Verona) steht Ihnen unser Büro in Affi zur Verfügung. Schablonen können innerhalb weniger Minuten nach Italien geschickt werden.
Weitere Möglichkeiten:
- CAD-Bearbeitung
- Stahlkonstruktionen
- Sonderkonstruktionen
- Technische Bearbeitung auf der Baustelle / Aufmaß
Preise je nach Aufwand und nach Absprache.

